APARTAMENTO TP | AL


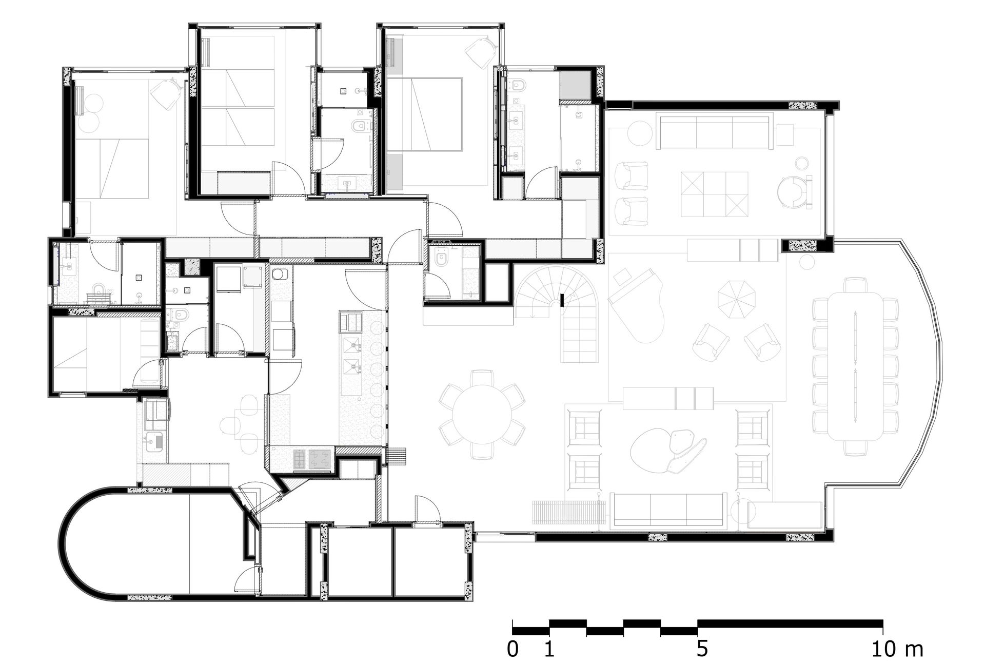
O projeto para a reforma desse apartamento localizado na praia de Ponta Verde, em Maceió, teve como ponto de partida, a vista deslumbrante do mar que ilumina os ambientes, através de amplas janelas em vidro piso teto, na sala de jantar. O imóvel ficou perfeito para receber amigos e curtir dias de férias.
O apartamento foi totalmente reformado, com a troca de revestimentos, e uso do mármore crema marfil.


Ficha Técnica

Nome do projeto Apartamento TP
Time do projeto Solange Cálio, Siumara Calio, Alexandro Vigna,  Camila Bertapeli, Lucas Trombini.
Local Maceió/ AL
Fotografias MCA Estúdio
Área 267 m²
Ano do projeto 2023
Fotografia Denilson Machado | MCA Studio

O mar participa do apartamento como mural permanente para a vista da sala de estar. A escada traz ligação com a cobertura dos pais do cliente. O acesso da sala para a cozinha é feito através de um painel com portas coplanares, que quando recolhido integra os dois ambientes.

APARTAMENTO TP | AL - 7
APARTAMENTO TP | AL - 8
Arquitetos - 0

No mobiliário escolhemos peças contemporâneas, de designers brasileiros, como Sergio Rodrigues, Jader Almeida, Gustavo Bittencourt, priorizando o conforto e as linhas retas. O ponto alto da decoração são as obras de arte, do acervo do cliente, que é colecionador.

Arquitetos - 5

Arquitetos - 7
Arquitetos - 8
Arquitetos - 10

Arquitetos - 13