CASA C+JP

A Casa C+JP foi implantada valorizando a vista privilegiada do terreno, localizado dentro de um condomínio com campo de golfe. O conceito principal se baseia na valorização das formas retas e cores neutras. Na entrada da residência temos a escada de acesso, suspensa, feita em chapa metálica perfurada, mantendo o jardim suspenso. Na lateral da rampa da garagem foram usadas pedras, como arrimo.


Ficha Técnica

Nome do projeto Casa C+JP
Local São José do Rio Preto/ SP
Time do projeto Verônica Bardella, Siumara Cálio, Gilson Fioravante
Paisagismo LF Paisagismo
Fotografias MCA Estúdio
Área 797 m²
Estrutura e material Concreto, metal, madeira
Ano do projeto 2022

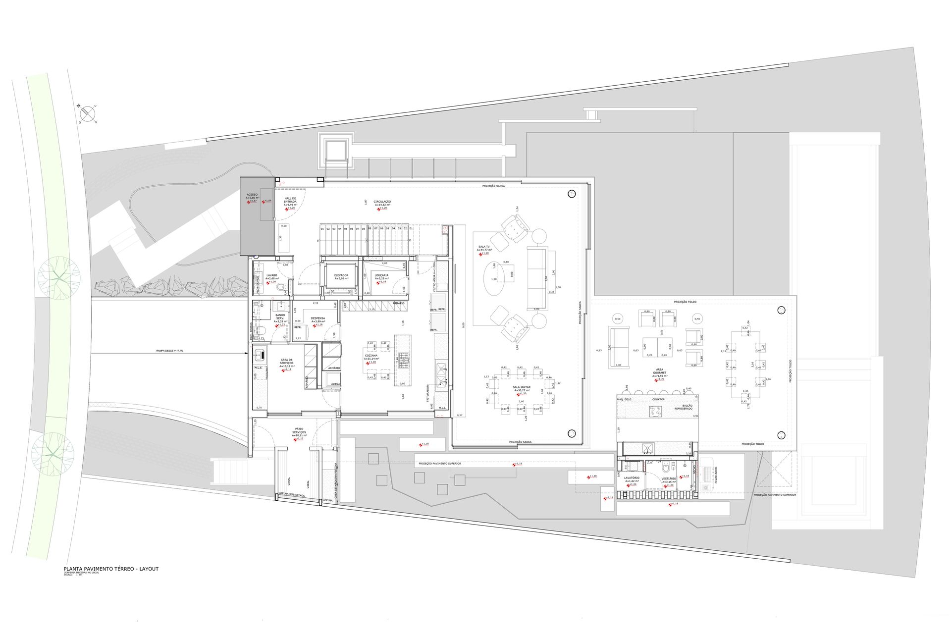
A escolha de materiais com pouca variação é importante para a continuidade visual. O piso em madeira ipê está presente desde a entrada da casa e une todos os ambientes, inclusive a área gourmet. 
A incidência do sol, presente praticamente o ano todo, foi resolvida com uso de brises verticais móveis, em chapa metálica ondulada perfurada, chamada mini wave. 
Com esse recurso conseguimos sombra no interior da casa, bloqueando a luz, e gerando um efeito de luzes e sombra, que muda durante o horário e posição do sol.
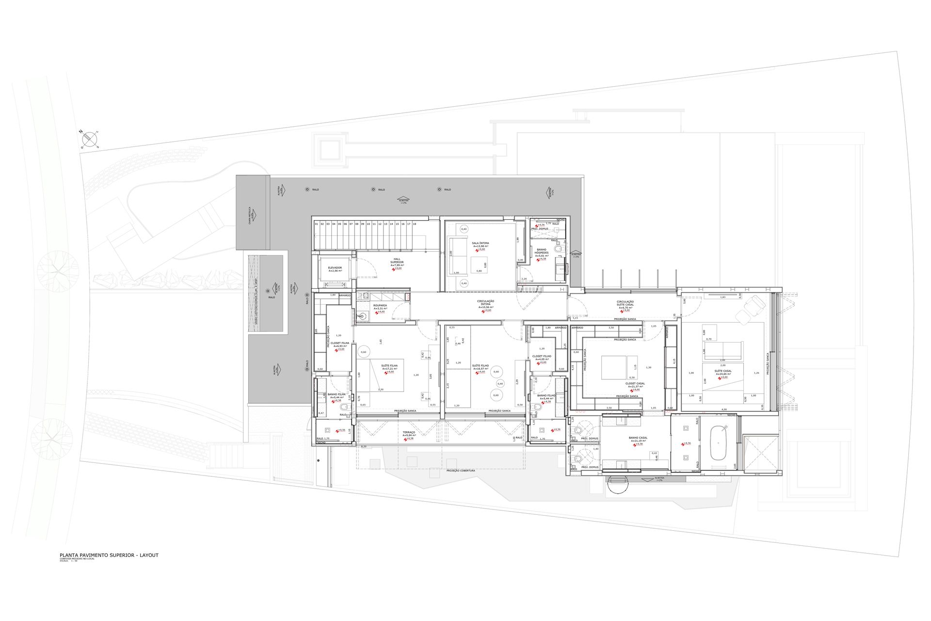
O piso em madeira ipê segue por todo piso, inclusive escada.do segundo pavimento. O painel em madeira freijó foi um recurso escolhido para ocultar as portas de acesso aos ambientes O banheiro da suíte casal é um dos pontos de destaque dentro da residência. Na busca de bem-estar, combinamos elementos naturais, cores, texturas e experiências. A vista é livre e ampla para o campo de golfe, o tom neutro vem no mármore Branco Paraná levigado, a banheira em posição estratégica leva o cliente a contemplação e descanso.

CASA C+JP - Cópia - 7
CASA C+JP - Cópia - 8

Para o Projeto de Interiores escolhemos peças contemporâneas de alguns designers brasileiros como Sergio Rodrigues, Jader Almeida, Arthur Casas, e algumas peças antigas, priorizando o conforto e as linhas retas.
A incidência do sol, presente praticamente o ano todo, foi resolvida com uso de brises verticais móveis, em chapa metálica ondulada perfurada, chamada mini wave. Com esse recurso conseguimos sombra no interior da casa, bloqueando a luz, e gerando um efeito de luzes e sombra, que muda durante o horário e posição do sol.

O escritório acompanhou a obra do início ao fim, desde o projeto arquitetônico, paisagístico e de interiores, o que resultou na realização de um sonho, para o cliente. E para o escritório, um privilégio, poder ver um projeto sair do papel para a realidade.






No primeiro pavimento temos a área social e de serviço da residência.

No pavimento superior temos 3 suítes e 1 home office, que se transforma em quarto de hóspedes, através do fechamento das portas.

No subsolo temos uma ampla garagem com acesso à casa de máquinas, espaço para depósito e hall de entrada.

A integração da área externa e interna, acontece através de grandes vãos, com caixilhos piso/teto, que se recolhem totalmente, unindo os espaços de lazer com a área interna da casa.

Arquitetos - 6
Arquitetos - 7

Arquitetos - 9

PROJETO x FOTO
(Clique e arraste para visualizar)

Antes Depois

Arquitetos - 15
Arquitetos - 16
Arquitetos - 18

Arquitetos - 22