CASA G+J
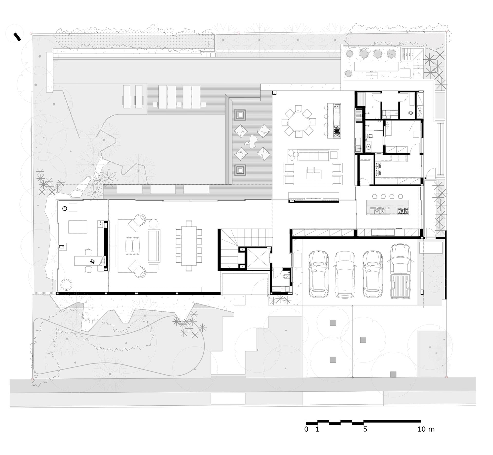
Com a prioridade de integrar a casa com a área externa, visto que se encontra em uma área cercada por natureza, foram criados vãos generosos. Os ambientes da casa são interligados por grandes aberturas e abundância de luz natural.
Ficha Técnica
Nome do projeto | Casa GS |
Local | São José do Rio Preto/ SP |
Time do projeto | Letícia, Laura Arruda, José Ricardo Corrêa, Thais |
Fotografias | MCA Estúdio |
Área | 749 m² |
Ano do projeto | 2014 |
Os revestimentos escolhidos acompanham o conceito da integração e contemporaneidade: o piso de madeira reveste a área social, enquanto o espaço das paredes é ora aquecido pelas obras de arte, ora pelo paisagismo da área externa. O caixilho da sala abre totalmente, garantindo integração total. No living, destaque para peças de Arthur Casas e Sério Rodrigues.

A área de lazer combina materiais diferentes, em cores sóbrias e quentes. A raia olímpica da piscina, junto ao paisagismo, arremata o terreno em grande estilo.