CASA M+D


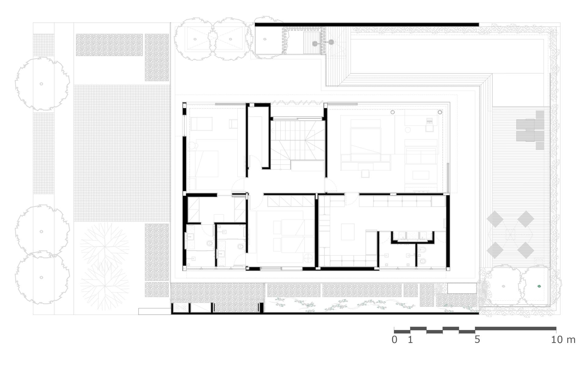
Com a predominância de linhas retas, a residência M+D possui dois pavimentos em um condomínio no interior de São Paulo; no térreo está disposta toda a área social da casa, enquanto o pavimento superior é dedicado para a área íntima dos moradores.


Ficha Técnica

Nome do projeto Casa M+D
Local São José do Rio Preto/ SP
Time do projeto Solange Calio, Siumara Calio, Tamires da Cunha
Fotografias MCA Estúdio
Área 410 m²
Ano do projeto 2015




A decoração minimalista e atemporal se harmoniza com o projeto arquitetônico deixando todo o protagonismo para a vista, que invade o ambiente por meio dos caixilhos de vidro. 






Arquitetos - 0

O revestimento em tijolinhos delimita todo o perímetro da fachada térrea, enquanto o volume superior é suavizado pela textura mais clara. Internamente, a presença da madeira no piso e na marcenaria é utilizada na medida certa para tornar os ambientes mais acolhedores.

Arquitetos - 1
Arquitetos - 2
Arquitetos - 3

Arquitetos - 6
Arquitetos - 7

A varanda gourmet segue o mesmo piso em ladrilho hidráulico da cozinha e área de serviço, levando personalidade ao ambiente sem comprometer o destaque para o campo de golfe, que faz divisa com o terreno. As espreguiçadeiras no deck em madeira são um convite à contemplação e ao relaxamento.

Arquitetos - 9
Arquitetos - 11