CASA M+S
Arquitetura contemporânea, com linhas retas, grandes vãos, integração entre o interno e o externo com aproveitamento da iluminação e ventilação naturais, proporcionando espaços confortáveis para o convívio familiar, bem como para receber. Essas foram as principais inspirações para o desenvolvimento dessa casa, localizada em Araçatuba, no interior de São Paulo.
Ficha Técnica
Nome do projeto | Casa M+S |
Local | Araçatuba/ SP |
Time do projeto | Solange Calio, Verônica Bardella, Siumara Cálio, Bruna Lopes, Marcela Assad |
Paisagismo | LF Paisagismo |
Fotografias | MCA Estúdio |
Área | 653 m² |
Iluminação | Lightsource |
Ano do projeto | 2019 |

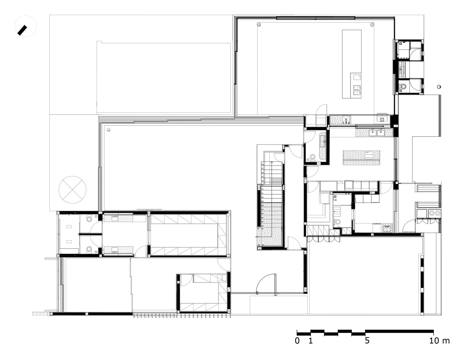
Apostamos nas novas ideias de projeto, que tinha como princípio base uma casa prática e funcional, contudo, aconchegante, e isso foi permitido pelas esquadrias que se integram com o jardim, piscina e gourmet, transformando todo o térreo em uma grande área de convivência.
A considerar que a residência se distribui em dois pavimentos, uma das premissas foi concentrar os ambientes sociais e de convívio no pavimento térreo para uma integração total e também com a área externa.


Este projeto sintetiza a busca pela funcionalidade em seu programa de necessidades, como prioridade, os espaços amplos e fluidos, que promovem uma ligação forte entre as áreas de convívio e o paisagismo.


Neste pavimento, a pedido dos clientes, a suíte principal ficou no térreo, para melhor atender ao casal, próximo à uma grande sala de estar integrada ao jantar, varanda gourmet, deck e piscina, além das áreas de serviço como cozinha, lavanderia e garagem.
No primeiro pavimento temos a área social e de serviço da residência.
No pavimento superior temos 3 suítes e 1 home office, que se transforma em quarto de hóspedes, através do fechamento das portas.
No subsolo temos uma ampla garagem com acesso à casa de máquinas, espaço para depósito e hall de entrada.
A integração da área externa e interna, acontece através de grandes vãos, com caixilhos piso/teto, que se recolhem totalmente, unindo os espaços de lazer com a área interna da casa.


Os ambientes propostos possuem a mesma linguagem, de modo que a casa possua a mesma atmosfera em um conceito integrado. Das soluções sustentáveis, a casa possui iluminação e ventilação natural cruzada, o que possibilita um baixo consumo de energia e conforto térmico.
A utilização de muxarabis controla a incidência solar, permitindo um clima agradável no interior da residência.


Para toda a casa foi utilizada iluminação indireta, além da iluminação natural.