CLÍNICA CUNRATH

Para essa clínica, trouxemos uma abordagem arquitetônica que busca harmonizar a funcionalidade com a estética sofisticada, criando ambientes acolhedores e inspiradores para os pacientes. Um projeto atemporal que se destaca por suas linhas retas e materiais distintos como pedras, madeira e aço corten.


Ficha Técnica


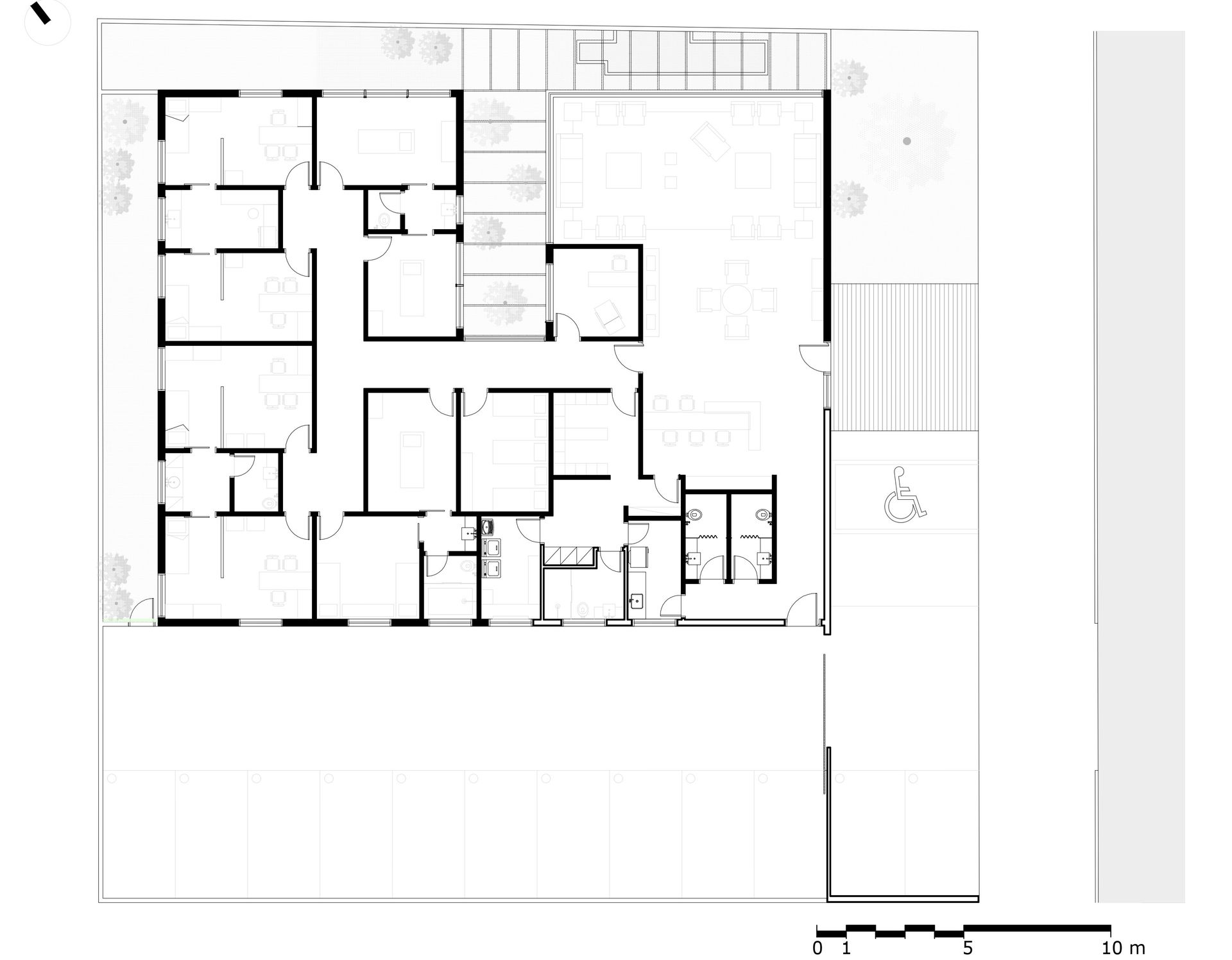
Nome do projeto Clínica Cunrath
Local São José do Rio Preto/ SP
Time do projeto Solange Cálio, Siumara Cálio
Área 417 m²
Ano do projeto 2007

CLÍNICA CUNRATH - 6








O design exterior da clínica é caracterizado por linhas retas e formas geométricas simples, dando a sensação de ordem e equilíbrio. A fachada incorpora pedras naturais para completar e criar uma aparência sólida e duradoura. Já a madeira é empregada em detalhes para adicionar uma sensação calorosa e acolhedora ao exterior da clínica, contrastando com os materiais e cores mais frios.







CLÍNICA CUNRATH - 10

De forma geral, o projeto tem áreas convidativas, com painéis de madeira em contraste com os tons mais claros junto da luz natural e da integração do jardim, que conecta o externo ao interno sem perder o conceito do projeto.

CLÍNICA CUNRATH - 12
CLÍNICA CUNRATH - 13