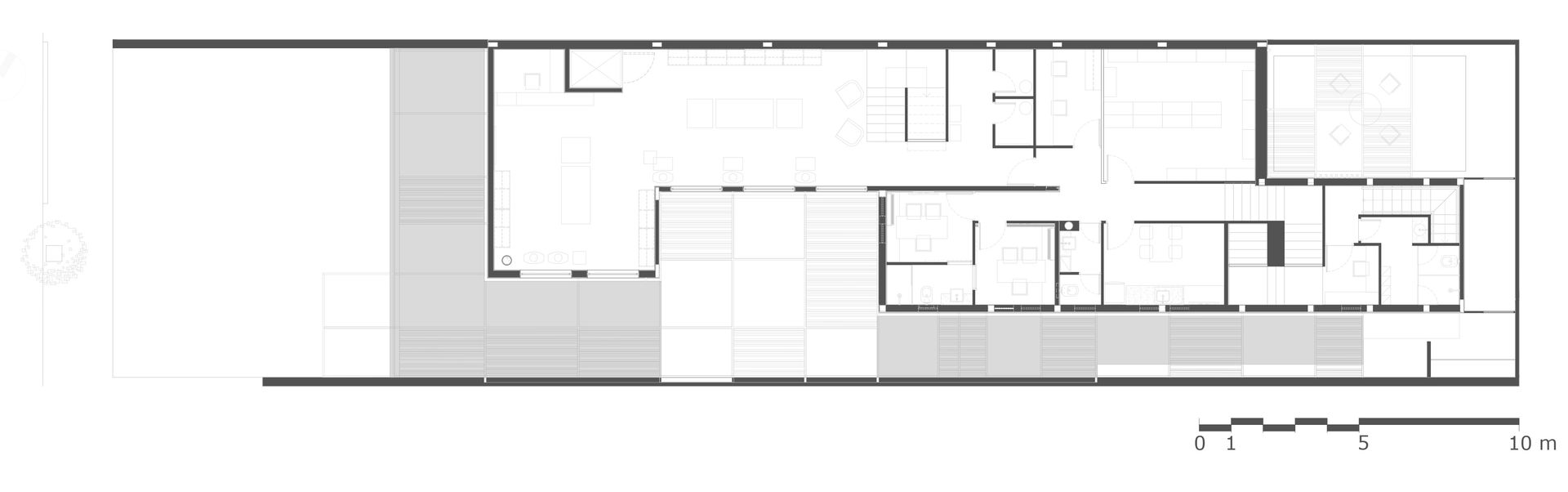
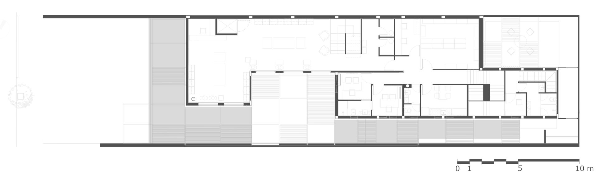
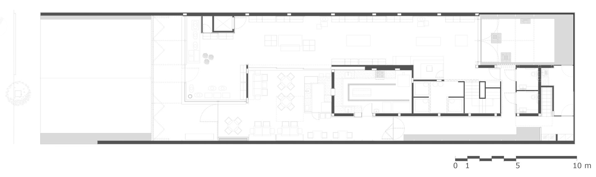
GENEROSA | VIVERDI BISTRÔ
Um espaço onde a moda, o design de interiores e a gastronomia se encontram para criar uma experiência única e aconchegante. Ao entrar na loja, somos bem recebidos pela abundância da luz natural, que flui através das grandes janelas estrategicamente posicionadas, que realça as cores e texturas das roupas e acessórios das diversas marcas de renome que são cuidadosamente exibidas.
Ficha Técnica
Nome do projeto | Generosa 3333 |
Local | São José do Rio Preto/ SP |
Time do projeto | Solange Cálio, Siumara Cálio, Lucas, Tamires |
Fotografias | MCA Estúdio |
Ano do projeto | 2017 |


Enquanto explora as últimas tendências na moda, o espaço também o convida para desfrutar de um momento de relaxamento no espaço do café. Aqui, a luz desempenha um papel essencial para criar um ambiente convidativo e caloroso. A vegetação interna proporciona um toque natural e sensação de aconchego para o espaço.


A transição suave entre a loja e o café é feita com muita leveza, permitindo que os clientes levem sua experiência para fora das prateleiras de roupas para uma xícara de café. Paredes com um tom mais neutro, onde a paleta de cores da moda se funde com os tons quentes da madeira e das plantas.


