MIRAI RESTAURANTE JAPONÊS

O Mirai Restaurante Japonês é um ícone na cidade, conhecido não apenas por sua culinária excepcional, mas também por sua arquitetura distintiva e atmosfera acolhedora. O projeto arquitetônico é uma extensão da identidade e da história dos proprietários, proporcionando aos clientes uma experiência imersiva na cultura japonesa desde o momento em que entram no estabelecimento.

O conceito por trás do design é criar um ambiente que celebre a tradição e a modernidade, combinando elementos tradicionais com toques contemporâneos para criar uma experiência única e memorável.


Ficha Técnica


Nome do projeto Mirai Restaurante Japonês
Local São José do Rio Preto/ SP
Time do projeto Solange Cálio, Leandro Marcelino, Lucas Trombini e Siumara Cálio
Fotografias Denilson Machado
Ano do projeto 2024

MIRAI RESTAURANTE JAPONÊS - 6

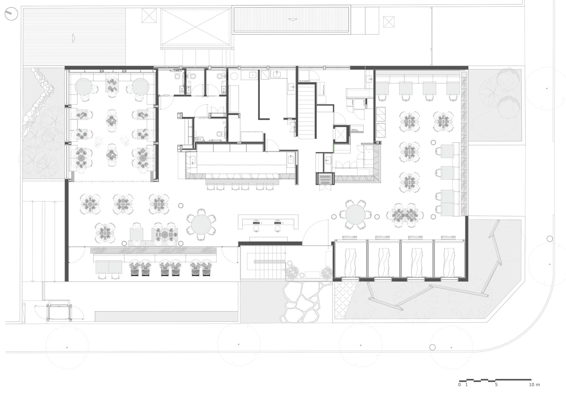
O interior é dividido em diferentes espaços, cada um projetado para oferecer uma experiência única aos clientes.

Uma área de bar animada, com balcão de sushi e coquetéis, cria um ponto focal dinâmico para interação e socialização.

Salas de jantar privativas oferecem um ambiente mais íntimo para grupos maiores, decoradas com detalhes tradicionais japoneses.

A iluminação é suave e difusa, criando uma atmosfera acolhedora e relaxante em todo o espaço.

MIRAI RESTAURANTE JAPONÊS - 11






A fachada do restaurante é marcada por linhas limpas e minimalistas, com destaque para elementos arquitetônicos japoneses, como os materiais naturais (madeira e pedra).

Luzes embutidas destacam áreas específicas, como o balcão de sushi e as peças de arte, enquanto luminárias suspensas adicionam um toque de drama e elegância.

Um jardim com bambus cuidadosamente planejado envolve o restaurante, proporcionando uma sensação de tranquilidade e conexão com a natureza.







MIRAI RESTAURANTE JAPONÊS - 13









O Mirai Restaurante Japonês não é apenas um destino culinário de destaque na cidade, mas também um espaço arquitetônico que conta a história e a paixão dos proprietários pelo Japão. Combinando tradição e inovação, o design convida os clientes a mergulhar em uma experiência sensorial completa, onde a comida, a arquitetura e a cultura se fundem harmoniosamente.











MIRAI RESTAURANTE JAPONÊS - 15
MIRAI RESTAURANTE JAPONÊS - 16