TARRAF SEDE
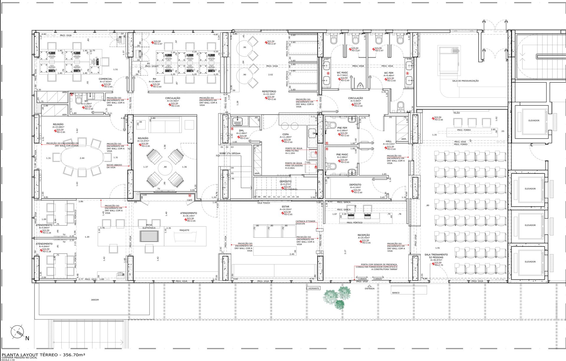
Localizada em um edifício multifuncional na cidade de São José do Rio Preto, a nova sede da Tarraf Incorporadora foi cuidadosamente projetada para refletir a identidade da marca e criar um ambiente de trabalho inspirador e descontraído para os colaboradores.
Ficha Técnica
Nome do projeto | Tarraf Sede |
Local | São José do Rio Preto/ SP |
Time do projeto | Solange Cálio, Siumara Cálio, Ana Carolina Miranda Amaral |
Fotografias | MCA Estúdio |
Ano do projeto | 2018 |



Luminosidade e clareza: a luz natural e o uso de cores da marca foram fundamentais para criar um ambiente arejado e acolhedor. A nova sede tem como premissa a integração do interior com o exterior através das grandes janelas.

A ideia era fazer um projeto onde a criatividade e a inovação tivessem um ponto de encontro. Sair do convencional e deixar de ser apenas um local de trabalho, mas também um símbolo de qualidade e experiências para todos que utilizassem os espaços.


Produtividade e bem-estar: utilizamos um mobiliário ergonômico para promover o bem-estar e a produtividade dos colaboradores.
Acreditamos que um ambiente de trabalho descontraído é um espaço onde a criatividade floresce, incorporando elementos de design que incentivam a descontração e a inspiração.

